- Nyitóoldal
- Termékek
- Közműcsatornák kábelaknák
- Közmű és kábelaknák
- Kábelakna elemek
Kábelakna elemek
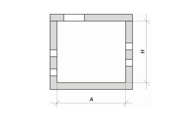
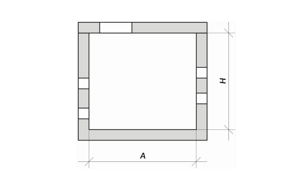
Az aknák lehetővé teszik az érkező és továbbvezetett közművek, kábelek rendezett elhelyezését, valamint lehetőséget biztosítanak a két akna közötti szakasz feltárás nélküli hibaelhárítására, korszerűsítésére. Kábelakna alaptípusok N1 és N2 aknák. Közmű aknák egyedi méretben készülnek. Egyedi termék.
Technikai adatok:
Tisztelt Érdeklődő!
A Dél Beton Kft. a típustermékek gyártása mellett, elsősorban a mélyépítés területén, egyedi termékek gyártására specializálódott.
A közmű és kábelaknákat -az N1 és N2 kábelaknák kivételével- minden esetben a Vevő igényeinek megfelelően gyártja, nincs alap méretválaszték.
Ajánlat adáshoz kérem az alábbi információkat szíveskedje megadni.
- Amennyiben rendelkezésre állnak az akna tervei, abban az esetben kérjük az akna és fedlapja tervének megküldését.
- Az akna tervei nem áll rendelkezésre, úgy szíveskedjen megadni az alábbiakat:
-az akna keresztmetszeti belső méretét „A x B” és az akna belső magasságát „H”,
-az akna oldalfalaiban lévő áttörések méreteit és pontos helyeit rajzos formában,
-esetleg beépítésre kerülő idomok, szerelvények típusait, pontos helyeit rajzos formában, -a fedlap terhelési osztályát.
Amennyiben kérdése van, vegye fel a kapcsolatot Hürkecz László ügyvezetővel
mobil: +36 20 622 4122, e-mail: hurkecz.laszló@delbeton.hu