- Nyitóoldal
- Termékek
- Közműcsatornák kábelaknák
- Közmű és kábelcsatornák
- Kábelcsatorna elemek
Kábelcsatorna elemek
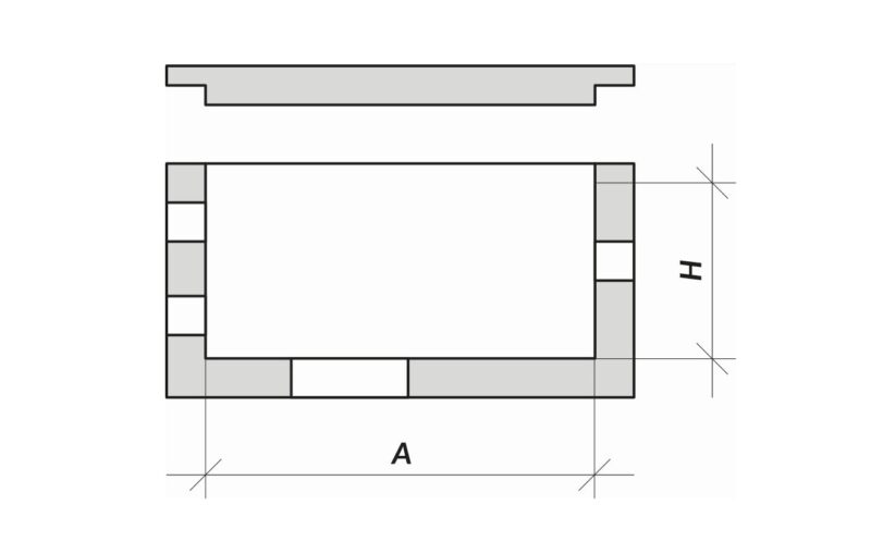
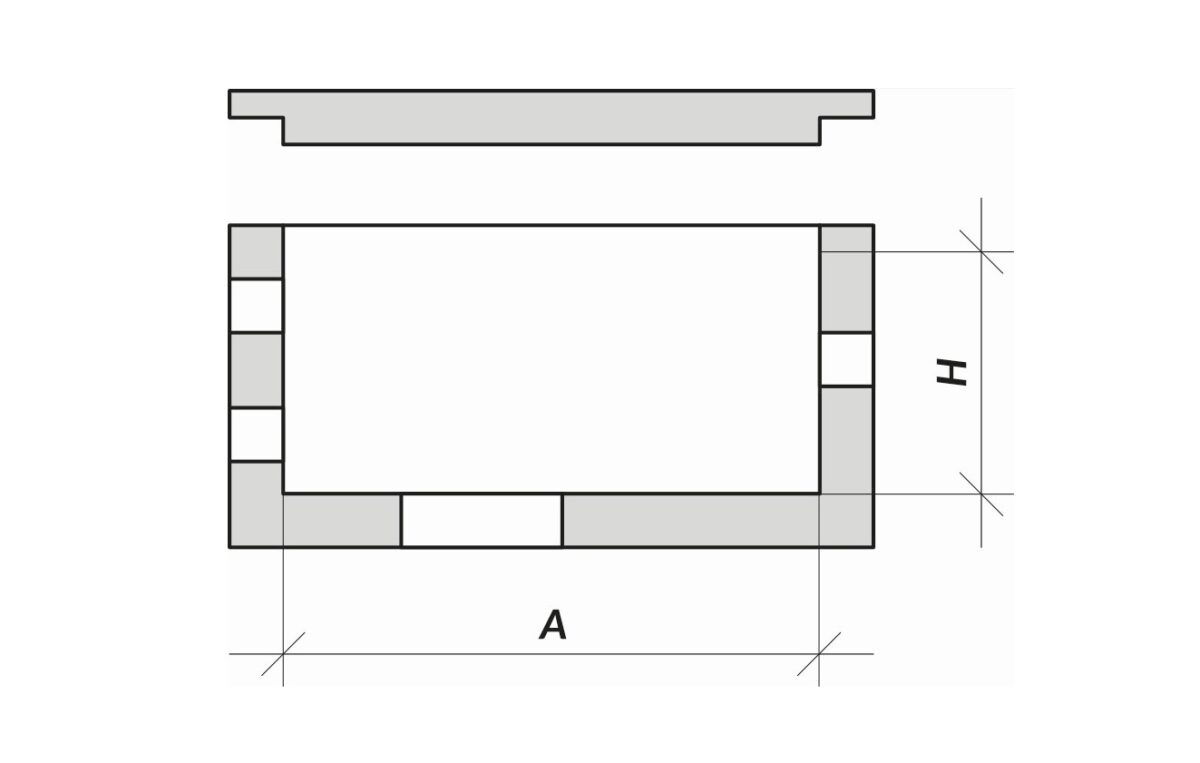
A közmű és kábelcsatorna elemek föld alá telepített közművek kábelek korszerű vezetésére, bevédésére, kötések, csomópontok, elágazások biztonságos kialakítására szolgálnak. Közmű és kábelcsatornák egyedi méretben készülnek. Egyedi termék.
Technikai adatok:
Tisztelt Érdeklődő!
A Dél Beton Kft. a típustermékek gyártása mellett, elsősorban a mélyépítés területén, egyedi termékek gyártására specializálódott.
A közmű és kábelcsatornákat minden esetben a Vevő igényeinek megfelelően gyártja, nincs alap méretválaszték.
Ajánlat adáshoz kérem az alábbi információkat szíveskedje megadni.
- Amennyiben rendelkezésre állnak a közmű/kábelcsatorna tervei, abban az esetben kérjük a közmű/kábelcsatorna és fedlapok terveinek megküldését.
- A közmű/kábelcsatornának tervei nem állnak rendelkezésre, úgy szíveskedjen megadni az alábbiakat:
-a közmű/kábelcsatorna keresztmetszeti belső szélességét „A”, és a belső magasságát „H”,
-a közmű/kábelcsatorna oldalfalaiban lévő áttörések méreteit és pontos helyeit rajzos formában,
-esetleg beépítésre kerülő idomok, szerelvények típusait, pontos helyeit rajzos formában,
-a fedlap terhelési osztályát.
Amennyiben kérdése van, vegye fel a kapcsolatot Hürkecz László ügyvezetővel
mobil: +36 20 622 4122, e-mail: hurkecz.laszlo@delbeton.hu